Яндекс.Метрика
ТОПДОМ

Для добавления проекта в избранное кликните на

Иконка закрытия поиска
Двухэтажный дом 188 м² Арт. 2.203

Строительство по проекту ТОПДОМ под ключ

  • Площадь: 188 м²
  • Санузел: 2
  • Этажей: 2
  • Спален: 5
Срок строительства: от 4-х месяцев Платёж по ипотеке : от 61 549 руб.
от 12 617 620 руб.
Стоимость зависит от комплектации
Получить консультацию Не хватает изюминки? Мы можем разработать проект индивидуально

Данный проект является типовым, мы можем сделать разные вариации проектов специально под Ваши пожелания

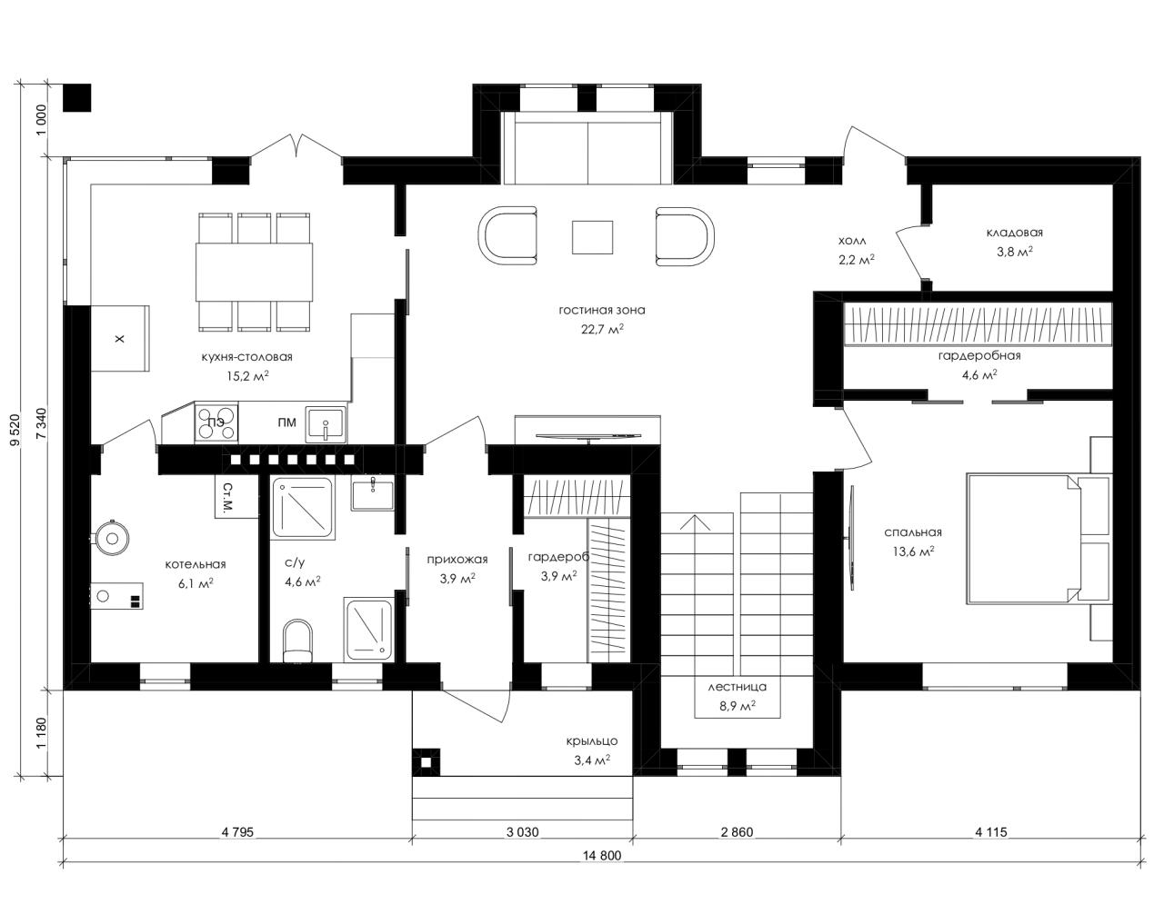
Планировка
Фото планировки
Фото планировки
Фото планировки

Характеристики

Комплектация
Проектирование

Детальный проект по архитектурным решениям и инженерным системам. Спецификации материалов. ТУ на производство работ.

Подготовка к работам

Организация бытовых помещений для строителей, устройство временного щита учета электроэнергии.

Фундамент

Железобетонные буронабивные сваи с анкерным расширением в основании и ростверком.

Ввод инженерных коммуникаций

Заземляющий контур. Ввод водопровода с греющим кабелем. Вывод технической и фекальной канализаций. Кран полива участка.

Каркас дома

Наружные стены дома из керамического блока 2.1 НФ, утепленные каменной ватой на 100 мм. вентиляционный зазор 30 мм. между утеплителем и облицовочной частью дома, снаружи дом отделан облицовочным кирпичом. Облицовка дома и внутренняя стена связываются между собой базальтовой сеткой.

Входная дверь и окна

Утепленная металлическая дверь с терморазрывами по коробке и полотну, с металлическим окрашенным листом снаружи и ламинированной под дерево внутренней панелью МДФ. Оконные блоки из профиля MELKE (Россия) с двухкамерными стеклопакетами 32мм.

Кровля

Штучная цементно-песчаная черепица BRAAS с необходимыми доборными элементами. Подкровельная мембрана «Ютайвек». Отделка карнизов и свесов кровли фиброцементной доской, либо софитами Docke.

Отделка фасада

Облицовка натуральным кирпичом либо штукатуркой.

Предчистовая отделка

Отделка стен гипсовой штукатуркой (машинный способ нанесения). Подоконники и откосы на окнах и дверях. Утепление и стяжка полов.

Лестница

Металлический каркас или железобетонная лестница.

Сантехприборы

Установка и подключение ванн (Россия), умывальников и унитазов Jika (Чехия).

Дымоходы и вентиляция

Двухтрубная система отопления с электрокотлом и обвязкой газового котла. Жидкостные радиаторы. Опрессовка системы перед запуском. Теплые полы по всему первому этажу и санузлах второго этажа.

Водопровод

Разводка металлопластиковых труб по дому. Кран ввода воды, фильтр глубокой очистки, манометр, распределительный коллектор, электробойлер. Подключение всех приборов.

Канализация

Канализационный стояк с ревизией и вентиляционным выходом на кровле. Скрытая разводка ПВХ труб системы канализации по дому.

Электрика

Скрытая разводка электропроводки в стальных трубах. Установка ВРУ, УЗО и автоматов на каждую группу потребителей. Монтаж освещения, выключателей и розеток.

Сопроводительные материалы

Схемы электропроводки, водопровода, системы отопления. Паспорт на все установленные в доме комплектующие. Запасные отделочные материалы.

Гарантийные обязательства

8 лет гарантии на основные строительные конструкции.

Геологические изыскания

Инженерно-геологических изыскания, приемка участка, привязка дома.

Рекомендуемые проекты

Арт. 1.230
Тёплый контур от: 5 653 800 руб
Площадь:   72 м²
Санузел:   2
Этажей:   1
Спален:   3

Платёж по ипотеке :

от 27 580 руб.

Срок строительства:

от 3-х месяцев

Арт. 1.240
Тёплый контур от: 6 811 036 руб
Площадь:   101 м²
Санузел:   1
Этажей:   1
Спален:   3

Платёж по ипотеке :

от 33 225 руб.

Срок строительства:

от 3-х месяцев

Арт. 2.269
Тёплый контур от: 14 900 016 руб
Площадь:   172 м²
Санузел:   3
Этажей:   2
Спален:   4

Платёж по ипотеке :

от 72 683 руб.

Срок строительства:

от 3-х месяцев

Арт. 1.231
Тёплый контур от: 8 573 580 руб
Площадь:   135 м²
Санузел:   2
Этажей:   1
Спален:   3

Платёж по ипотеке :

от 41 822 руб.

Срок строительства:

от 3-х месяцев

Арт. 1.303
Тёплый контур от: 12 500 064 руб
Площадь:   144 м²
Санузел:   2
Этажей:   1
Спален:   4

Платёж по ипотеке :

от 60 976 руб.

Срок строительства:

от 3-х месяцев

Арт. 2.209
Тёплый контур от: 18 382 056 руб
Площадь:   294 м²
Санузел:   3
Этажей:   2
Спален:   5

Платёж по ипотеке :

от 89 669 руб.

Срок строительства:

от 3-х месяцев

Арт. 2.54
Тёплый контур от: 11 196 480 руб
Площадь:   160 м²
Санузел:   2
Этажей:   2
Спален:   4

Платёж по ипотеке :

от 54 617 руб.

Срок строительства:

от 3-х месяцев

Арт. 2.71
Тёплый контур от: 11 196 480 руб
Площадь:   160 м²
Санузел:   3
Этажей:   2
Спален:   5

Платёж по ипотеке :

от 54 617 руб.

Срок строительства:

от 3-х месяцев

Арт. 1.282
Тёплый контур от: 7 625 028 руб
Площадь:   116 м²
Санузел:   2
Этажей:   1
Спален:   3

Платёж по ипотеке :

от 37 195 руб.

Срок строительства:

от 3-х месяцев

Строительство загородных домов под ключ

Загородное строительство домов под ключ – это комплекс работ по постройке зданий, в котором каждая организация будет предоставлять в данном комплексе свои услуги. Как показывает наша практика – строительство можно начинать в любое время года.

Строительство домов за городом

В сети есть множество проектов домов разных архитектурных стилей: лейнхаусы, таунхаусы, а также поселки эконом классов. Благодаря ним, вы сможете получить представление о том, как будет выглядеть ваш будущий дом за городом. Для реализации строительства дома под ключ вовсе не обязательно строить дом своими руками. Тем более, когда есть проверенные проектировщики в Москве и Подмосковье, которые разработали оптимальные варианты жилья.

Дом за городом под ключ

Наша компания позволяет построить дом в краткие сроки, как и по готовым проектам, так и по индивидуальным планам. В команде лучшие бригады по постройке домов за городом. Они профессионально и оперативно разбираются во всех элементах строительных работ, в то время как клиенту остается просто выбрать готовый проект и наблюдать за увлекательным процессом его реализации.

Загородное строительство дома

Строительство под ключ в Москве позволяет построить жилой дом любого типа, как деревянных, так и газобетонных зданий. Любители загородного дома имеют возможность заказать услугу готового дома с проектированием и возведением. Это позволит построить коттедж за минимальные сроки. Заказывая готовый проект, вы можете быть уверены в том, что ваше жилье прослужит вам долгие сроки.