Яндекс.Метрика
ТОПДОМ

Для добавления проекта в избранное кликните на

Иконка закрытия поиска
Двухэтажный дом 123 м² Арт. 2.38

Строительство по проекту ТОПДОМ под ключ

  • Площадь: 123 м²
  • Санузел: 2
  • Этажей: 2
  • Спален: 4
Срок строительства: от 4-х месяцев Платёж по ипотеке : от 44 592 руб.
от 9 141 360 руб.
Стоимость зависит от комплектации
Получить консультацию Не хватает изюминки? Мы можем разработать проект индивидуально

Данный проект является типовым, мы можем сделать разные вариации проектов специально под Ваши пожелания

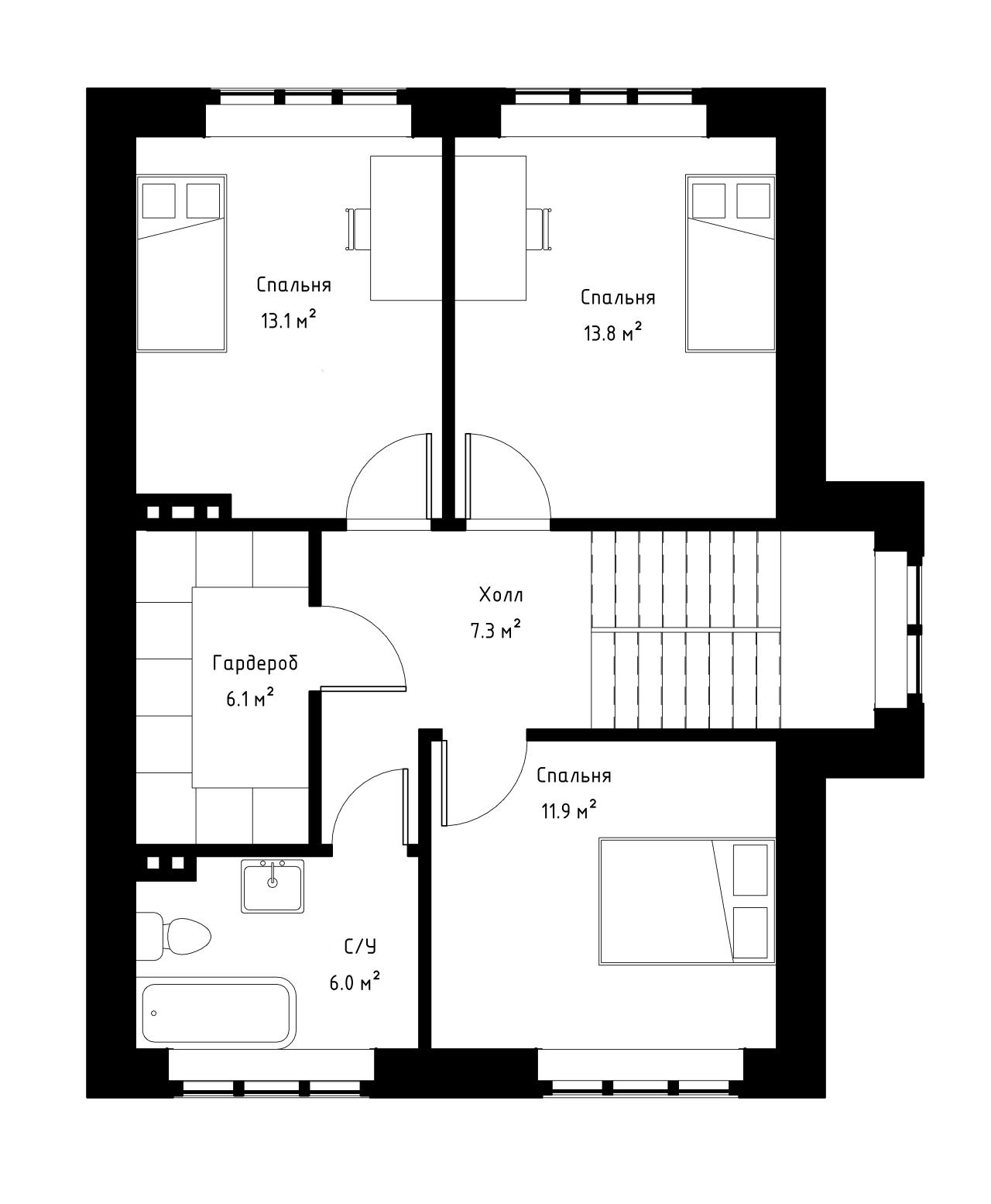
Планировка
Фото планировки
Фото планировки
Фото планировки

Характеристики

Комплектация
Проектирование

Детальный проект по архитектурным решениям и инженерным системам. Спецификации материалов. ТУ на производство работ.

Подготовка к работам

Организация бытовых помещений для строителей, устройство временного щита учета электроэнергии.

Фундамент

Железобетонные буронабивные сваи с анкерным расширением в основании и ростверком.

Ввод инженерных коммуникаций

Заземляющий контур. Ввод водопровода с греющим кабелем. Вывод технической и фекальной канализаций. Кран полива участка.

Каркас дома

Наружные стены дома из керамического блока 2.1 НФ, утепленные каменной ватой на 100 мм. вентиляционный зазор 30 мм. между утеплителем и облицовочной частью дома, снаружи дом отделан облицовочным кирпичом. Облицовка дома и внутренняя стена связываются между собой базальтовой сеткой.

Входная дверь и окна

Утепленная металлическая дверь с терморазрывами по коробке и полотну, с металлическим окрашенным листом снаружи и ламинированной под дерево внутренней панелью МДФ. Оконные блоки из профиля MELKE (Россия) с двухкамерными стеклопакетами 32мм.

Кровля

Штучная цементно-песчаная черепица BRAAS с необходимыми доборными элементами. Подкровельная мембрана «Ютайвек». Отделка карнизов и свесов кровли фиброцементной доской, либо софитами Docke.

Отделка фасада

Облицовка натуральным кирпичом либо штукатуркой.

Предчистовая отделка

Отделка стен гипсовой штукатуркой (машинный способ нанесения). Подоконники и откосы на окнах и дверях. Утепление и стяжка полов.

Лестница

Металлический каркас или железобетонная лестница.

Сантехприборы

Установка и подключение ванн (Россия), умывальников и унитазов Jika (Чехия).

Дымоходы и вентиляция

Двухтрубная система отопления с электрокотлом и обвязкой газового котла. Жидкостные радиаторы. Опрессовка системы перед запуском. Теплые полы по всему первому этажу и санузлах второго этажа.

Водопровод

Разводка металлопластиковых труб по дому. Кран ввода воды, фильтр глубокой очистки, манометр, распределительный коллектор, электробойлер. Подключение всех приборов.

Канализация

Канализационный стояк с ревизией и вентиляционным выходом на кровле. Скрытая разводка ПВХ труб системы канализации по дому.

Электрика

Скрытая разводка электропроводки в стальных трубах. Установка ВРУ, УЗО и автоматов на каждую группу потребителей. Монтаж освещения, выключателей и розеток.

Сопроводительные материалы

Схемы электропроводки, водопровода, системы отопления. Паспорт на все установленные в доме комплектующие. Запасные отделочные материалы.

Гарантийные обязательства

8 лет гарантии на основные строительные конструкции.

Геологические изыскания

Инженерно-геологических изыскания, приемка участка, привязка дома.

Рекомендуемые проекты

Арт. 1.4
Тёплый контур от: 7 080 780 руб
Площадь:   105 м²
Санузел:   1
Этажей:   1
Спален:   2

Платёж по ипотеке :

от 34 540 руб.

Срок строительства:

от 3-х месяцев

Арт. 1.57
Тёплый контур от: 7 690 761 руб
Площадь:   117 м²
Санузел:   2
Этажей:   1
Спален:   3

Платёж по ипотеке :

от 37 516 руб.

Срок строительства:

от 3-х месяцев

Арт. 1.61
Тёплый контур от: 8 091 375 руб
Площадь:   125 м²
Санузел:   1
Этажей:   1
Спален:   3

Платёж по ипотеке :

от 39 470 руб.

Срок строительства:

от 3-х месяцев

Арт. 2.270
Тёплый контур от: 18 900 000 руб
Площадь:   224 м²
Санузел:   4
Этажей:   2
Спален:   4

Платёж по ипотеке :

от 92 195 руб.

Срок строительства:

от 3-х месяцев

Арт. 1.292
Тёплый контур от: 10 680 615 руб
Площадь:   165 м²
Санузел:   3
Этажей:   1
Спален:   4

Платёж по ипотеке :

от 52 101 руб.

Срок строительства:

от 3-х месяцев

Арт. 1.277
Тёплый контур от: 9 716 616 руб
Площадь:   156 м²
Санузел:   1
Этажей:   1
Спален:   3

Платёж по ипотеке :

от 47 398 руб.

Срок строительства:

от 3-х месяцев

Арт. 1.310
Тёплый контур от: 0 руб
Площадь:   124 м²
Санузел:   2
Этажей:   1
Спален:   3

Платёж по ипотеке :

от 0 руб.

Срок строительства:

от 3-х месяцев

Арт. 2.28
Тёплый контур от: 18 010 944 руб
Площадь:   288 м²
Санузел:   2
Этажей:   2
Спален:   4

Платёж по ипотеке :

от 87 858 руб.

Срок строительства:

от 3-х месяцев

Арт. 2.268
Тёплый контур от: 14 600 100 руб
Площадь:   150 м²
Санузел:   3
Этажей:   2
Спален:   4

Платёж по ипотеке :

от 71 220 руб.

Срок строительства:

от 3-х месяцев

Строительство загородных домов под ключ

Загородное строительство домов под ключ – это комплекс работ по постройке зданий, в котором каждая организация будет предоставлять в данном комплексе свои услуги. Как показывает наша практика – строительство можно начинать в любое время года.

Строительство домов за городом

В сети есть множество проектов домов разных архитектурных стилей: лейнхаусы, таунхаусы, а также поселки эконом классов. Благодаря ним, вы сможете получить представление о том, как будет выглядеть ваш будущий дом за городом. Для реализации строительства дома под ключ вовсе не обязательно строить дом своими руками. Тем более, когда есть проверенные проектировщики в Москве и Подмосковье, которые разработали оптимальные варианты жилья.

Дом за городом под ключ

Наша компания позволяет построить дом в краткие сроки, как и по готовым проектам, так и по индивидуальным планам. В команде лучшие бригады по постройке домов за городом. Они профессионально и оперативно разбираются во всех элементах строительных работ, в то время как клиенту остается просто выбрать готовый проект и наблюдать за увлекательным процессом его реализации.

Загородное строительство дома

Строительство под ключ в Москве позволяет построить жилой дом любого типа, как деревянных, так и газобетонных зданий. Любители загородного дома имеют возможность заказать услугу готового дома с проектированием и возведением. Это позволит построить коттедж за минимальные сроки. Заказывая готовый проект, вы можете быть уверены в том, что ваше жилье прослужит вам долгие сроки.