Яндекс.Метрика
ТОПДОМ

Для добавления проекта в избранное кликните на

Иконка закрытия поиска
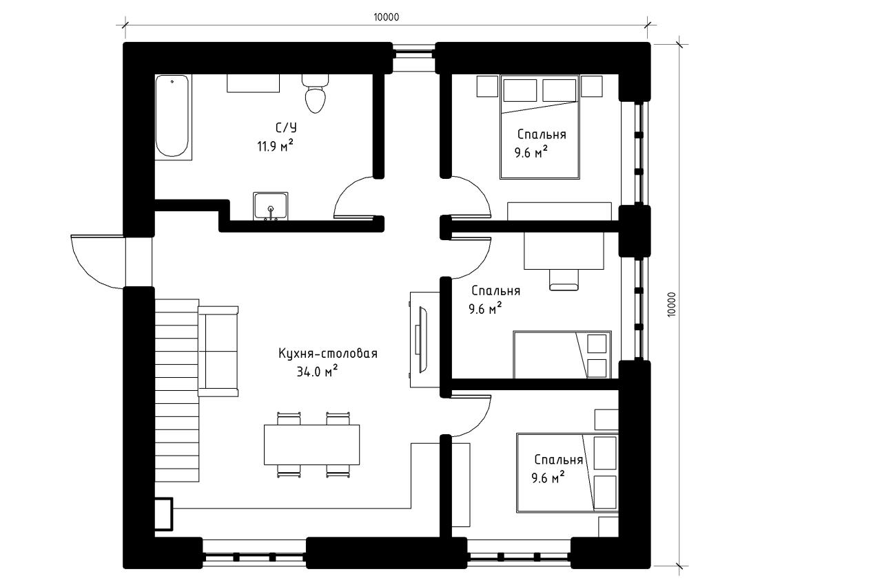
Одноэтажный дом 75 м² Арт. 1.62

Строительство по проекту ТОПДОМ под ключ

  • Площадь: 75 м²
  • Санузел: 1
  • Этажей: 1
  • Спален: 3
Срок строительства: от 3-х месяцев Платёж по ипотеке : от 28 729 руб.
от 5 889 375 руб.
Стоимость зависит от комплектации
Получить консультацию Не хватает изюминки? Мы можем разработать проект индивидуально

Данный проект является типовым, мы можем сделать разные вариации проектов специально под Ваши пожелания

Планировка
Фото планировки
Фото планировки
Фото планировки
Фото планировки
Фото планировки
Фото планировки
Описание

Когда речь идет о кирпичном доме 10х10, вы получаете не просто жилье, а настоящий пример эффективного использования пространства: Построенный по уникальному проекту 10х10, этот компактный и функциональный дом показывает, как можно сочетать комфорт, стиль и удобство, не теряя при этом этих важнейших характеристик. Он показывает, как можно сочетать комфорт, стиль и удобство, не теряя при этом этих важнейших характеристик.

Оптимизация пространства до мельчайших деталей

Проект 10х10 - это не просто цифра, а реализованная концепция. Каждый квадратный метр дома использован с умом, чтобы сделать пространство максимально удобным и функциональным. Комнаты оптимизированы до мельчайших деталей и имеют все необходимое для компактного, но комфортного проживания.

Кирпич символизирует долговечность и надежность

Кирпичные стены придают дому не только красоту, но и долговечную надежность. Кирпич - символ долговечности, и выбор этого материала означает, что ваш дом будет защищать вас от внешних воздействий и поддерживать стабильную температуру в помещении на протяжении многих лет.

Эстетика и комфорт

Компактность этого дома не умаляет его эстетических достоинств. Отделка, цвета и дизайн интерьера продуманы до мелочей, создавая гармоничное сочетание стиля и комфорта. Даже в самых маленьких комнатах есть все необходимое для комфортной жизни.

Экологическая безопасность.

Кирпич не только долговечен, но и экологически безопасен. Жизнь в кирпичном доме способствует созданию здоровой внутренней среды, что особенно важно для здоровья и хорошего самочувствия.

Результаты.

Кирпичный дом 10х10 воплощает идею о том, что качественный дом не обязательно должен быть большим. Этот дом доказывает, что в ограниченном пространстве можно жить комфортно и стильно. Не упустите возможность найти уютный уголок в этом компактном и удивительно удобном доме.

Характеристики

Комплектация
Проектирование

Детальный проект по архитектурным решениям и инженерным системам. Спецификации материалов. ТУ на производство работ.

Подготовка к работам

Организация бытовых помещений для строителей, устройство временного щита учета электроэнергии.

Фундамент

Железобетонные буронабивные сваи с анкерным расширением в основании и ростверком.

Ввод инженерных коммуникаций

Заземляющий контур. Ввод водопровода с греющим кабелем. Вывод технической и фекальной канализаций. Кран полива участка.

Каркас дома

Наружные стены дома из керамического блока 2.1 НФ, утепленные каменной ватой на 100 мм. вентиляционный зазор 30 мм. между утеплителем и облицовочной частью дома, снаружи дом отделан облицовочным кирпичом. Облицовка дома и внутренняя стена связываются между собой базальтовой сеткой.

Входная дверь и окна

Утепленная металлическая дверь с терморазрывами по коробке и полотну, с металлическим окрашенным листом снаружи и ламинированной под дерево внутренней панелью МДФ. Оконные блоки из профиля MELKE (Россия) с двухкамерными стеклопакетами 32мм.

Кровля

Штучная цементно-песчаная черепица BRAAS с необходимыми доборными элементами. Подкровельная мембрана «Ютайвек». Отделка карнизов и свесов кровли фиброцементной доской, либо софитами Docke.

Отделка фасада

Облицовка натуральным кирпичом либо штукатуркой.

Предчистовая отделка

Отделка стен гипсовой штукатуркой (машинный способ нанесения). Подоконники и откосы на окнах и дверях. Утепление и стяжка полов.

Лестница

Металлический каркас или железобетонная лестница.

Сантехприборы

Установка и подключение ванн (Россия), умывальников и унитазов Jika (Чехия).

Дымоходы и вентиляция

Двухтрубная система отопления с электрокотлом и обвязкой газового котла. Жидкостные радиаторы. Опрессовка системы перед запуском. Теплые полы по всему первому этажу и санузлах второго этажа.

Водопровод

Разводка металлопластиковых труб по дому. Кран ввода воды, фильтр глубокой очистки, манометр, распределительный коллектор, электробойлер. Подключение всех приборов.

Канализация

Канализационный стояк с ревизией и вентиляционным выходом на кровле. Скрытая разводка ПВХ труб системы канализации по дому.

Электрика

Скрытая разводка электропроводки в стальных трубах. Установка ВРУ, УЗО и автоматов на каждую группу потребителей. Монтаж освещения, выключателей и розеток.

Сопроводительные материалы

Схемы электропроводки, водопровода, системы отопления. Паспорт на все установленные в доме комплектующие. Запасные отделочные материалы.

Гарантийные обязательства

8 лет гарантии на основные строительные конструкции.

Геологические изыскания

Инженерно-геологических изыскания, приемка участка, привязка дома.

Рекомендуемые проекты

Арт. 2.276
Тёплый контур от: 19 900 049 руб
Площадь:   247 м²
Санузел:   3
Этажей:   2
Спален:   4

Платёж по ипотеке :

от 97 073 руб.

Срок строительства:

от 3-х месяцев

Арт. 2.99
Тёплый контур от: 11 714 355 руб
Площадь:   171 м²
Санузел:   3
Этажей:   2
Спален:   4

Платёж по ипотеке :

от 57 143 руб.

Срок строительства:

от 3-х месяцев

Арт. 1.304
Тёплый контур от: 13 300 050 руб
Площадь:   150 м²
Санузел:   2
Этажей:   1
Спален:   3

Платёж по ипотеке :

от 64 878 руб.

Срок строительства:

от 3-х месяцев

Арт. 1.240
Тёплый контур от: 6 811 036 руб
Площадь:   101 м²
Санузел:   1
Этажей:   1
Спален:   3

Платёж по ипотеке :

от 33 225 руб.

Срок строительства:

от 3-х месяцев

Арт. 2.54
Тёплый контур от: 11 196 480 руб
Площадь:   160 м²
Санузел:   2
Этажей:   2
Спален:   4

Платёж по ипотеке :

от 54 617 руб.

Срок строительства:

от 3-х месяцев

Арт. 1.67
Тёплый контур от: 5 732 325 руб
Площадь:   73 м²
Санузел:   1
Этажей:   1
Спален:   2

Платёж по ипотеке :

от 27 963 руб.

Срок строительства:

от 3-х месяцев

Арт. 1.298
Тёплый контур от: 9 750 000 руб
Площадь:   130 м²
Санузел:   2
Этажей:   1
Спален:   3

Платёж по ипотеке :

от 47 561 руб.

Срок строительства:

от 3-х месяцев

Арт. 1.271
Тёплый контур от: 8 383 056 руб
Площадь:   132 м²
Санузел:   2
Этажей:   1
Спален:   2

Платёж по ипотеке :

от 40 893 руб.

Срок строительства:

от 3-х месяцев

Арт. 1.273
Тёплый контур от: 8 891 120 руб
Площадь:   140 м²
Санузел:   2
Этажей:   1
Спален:   3

Платёж по ипотеке :

от 43 371 руб.

Срок строительства:

от 3-х месяцев

Строительство загородных домов под ключ

Загородное строительство домов под ключ – это комплекс работ по постройке зданий, в котором каждая организация будет предоставлять в данном комплексе свои услуги. Как показывает наша практика – строительство можно начинать в любое время года.

Строительство домов за городом

В сети есть множество проектов домов разных архитектурных стилей: лейнхаусы, таунхаусы, а также поселки эконом классов. Благодаря ним, вы сможете получить представление о том, как будет выглядеть ваш будущий дом за городом. Для реализации строительства дома под ключ вовсе не обязательно строить дом своими руками. Тем более, когда есть проверенные проектировщики в Москве и Подмосковье, которые разработали оптимальные варианты жилья.

Дом за городом под ключ

Наша компания позволяет построить дом в краткие сроки, как и по готовым проектам, так и по индивидуальным планам. В команде лучшие бригады по постройке домов за городом. Они профессионально и оперативно разбираются во всех элементах строительных работ, в то время как клиенту остается просто выбрать готовый проект и наблюдать за увлекательным процессом его реализации.

Загородное строительство дома

Строительство под ключ в Москве позволяет построить жилой дом любого типа, как деревянных, так и газобетонных зданий. Любители загородного дома имеют возможность заказать услугу готового дома с проектированием и возведением. Это позволит построить коттедж за минимальные сроки. Заказывая готовый проект, вы можете быть уверены в том, что ваше жилье прослужит вам долгие сроки.