Яндекс.Метрика
ТОПДОМ

Для добавления проекта в избранное кликните на

Иконка закрытия поиска
Одноэтажный дом 134 м² Арт. 1.241

Строительство по проекту ТОПДОМ под ключ

  • Площадь: 134 м²
  • Санузел: 2
  • Этажей: 1
  • Спален: 3
Срок строительства: от 4-х месяцев Платёж по ипотеке : от 41 513 руб.
от 8 510 072 руб.
Стоимость зависит от комплектации
Получить консультацию Не хватает изюминки? Мы можем разработать проект индивидуально

Данный проект является типовым, мы можем сделать разные вариации проектов специально под Ваши пожелания

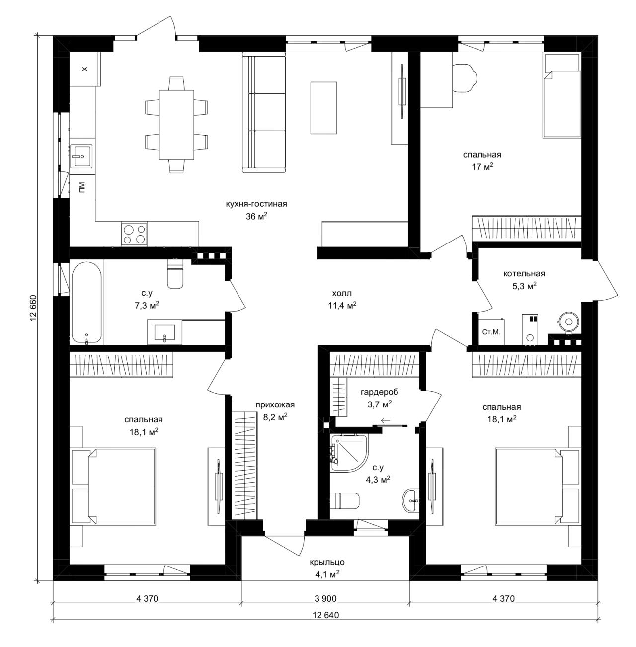
Планировка
Фото планировки
Фото планировки
Описание

Проект одноэтажного дома с плоской крышей - воплощение современного стиля и функциональной элегантности. Дом представляет собой сочетание инновационного дизайна и комфорта, придавая каждому уголку неповторимый и современный шарм.

Сердце проекта - плоская крыша, которая, помимо стильной красоты, предлагает множество практичных решений. Просторная плоская крыша служит не только современным основанием для солнечных батарей, но и отличным пространством для создания уютной зоны патио с захватывающим видом на окружающую природу.

Фасад дома отличается чистотой линий и минимализмом. Современные материалы отделки, такие как стекло и металл, придают фасаду современный вид, а использование природных элементов добавляет теплоты и естественности. Большие панорамные окна наполняют интерьер светом и создают визуальную связь с окружающей природой.

Интерьер этого одноэтажного дома был тщательно продуман. Открытая планировка гостиной, кухни и столовой создает ощущение простора, а современные отделочные материалы придают интерьеру стиль и изысканность. Просторные спальни обставлены с учетом всех потребностей, создавая уютное пространство для отдыха.

Дизайн этого дома с плоской крышей - не только архитектурное творение, но и сочетание современных технологий и эстетики. Плоская крыша придает зданию современный вид, а тщательная планировка и внимание к деталям делают этот дом идеальным для тех, кто хочет современности и комфорта в каждой детали. Откройте для себя новый уровень жизни в этом стильном и функциональном одноэтажном доме с плоской крышей.

Характеристики

Комплектация
Проектирование

Детальный проект по архитектурным решениям и инженерным системам. Спецификации материалов. ТУ на производство работ.

Подготовка к работам

Организация бытовых помещений для строителей, устройство временного щита учета электроэнергии.

Фундамент

Железобетонные буронабивные сваи с анкерным расширением в основании и ростверком.

Ввод инженерных коммуникаций

Заземляющий контур. Ввод водопровода с греющим кабелем. Вывод технической и фекальной канализаций. Кран полива участка.

Каркас дома

Наружные стены дома из керамического блока 2.1 НФ, утепленные каменной ватой на 100 мм. вентиляционный зазор 30 мм. между утеплителем и облицовочной частью дома, снаружи дом отделан облицовочным кирпичом. Облицовка дома и внутренняя стена связываются между собой базальтовой сеткой.

Входная дверь и окна

Утепленная металлическая дверь с терморазрывами по коробке и полотну, с металлическим окрашенным листом снаружи и ламинированной под дерево внутренней панелью МДФ. Оконные блоки из профиля MELKE (Россия) с двухкамерными стеклопакетами 32мм.

Кровля

Штучная цементно-песчаная черепица BRAAS с необходимыми доборными элементами. Подкровельная мембрана «Ютайвек». Отделка карнизов и свесов кровли фиброцементной доской, либо софитами Docke.

Отделка фасада

Облицовка натуральным кирпичом либо штукатуркой.

Предчистовая отделка

Отделка стен гипсовой штукатуркой (машинный способ нанесения). Подоконники и откосы на окнах и дверях. Утепление и стяжка полов.

Лестница

Металлический каркас или железобетонная лестница.

Сантехприборы

Установка и подключение ванн (Россия), умывальников и унитазов Jika (Чехия).

Дымоходы и вентиляция

Двухтрубная система отопления с электрокотлом и обвязкой газового котла. Жидкостные радиаторы. Опрессовка системы перед запуском. Теплые полы по всему первому этажу и санузлах второго этажа.

Водопровод

Разводка металлопластиковых труб по дому. Кран ввода воды, фильтр глубокой очистки, манометр, распределительный коллектор, электробойлер. Подключение всех приборов.

Канализация

Канализационный стояк с ревизией и вентиляционным выходом на кровле. Скрытая разводка ПВХ труб системы канализации по дому.

Электрика

Скрытая разводка электропроводки в стальных трубах. Установка ВРУ, УЗО и автоматов на каждую группу потребителей. Монтаж освещения, выключателей и розеток.

Сопроводительные материалы

Схемы электропроводки, водопровода, системы отопления. Паспорт на все установленные в доме комплектующие. Запасные отделочные материалы.

Гарантийные обязательства

8 лет гарантии на основные строительные конструкции.

Геологические изыскания

Инженерно-геологических изыскания, приемка участка, привязка дома.

Рекомендуемые проекты

Арт. 1.242
Тёплый контур от: 7 493 562 руб
Площадь:   114 м²
Санузел:   2
Этажей:   1
Спален:   3

Платёж по ипотеке :

от 36 554 руб.

Срок строительства:

от 3-х месяцев

Арт. 2.33
Тёплый контур от: 8 926 440 руб
Площадь:   120 м²
Санузел:   2
Этажей:   2
Спален:   4

Платёж по ипотеке :

от 43 544 руб.

Срок строительства:

от 3-х месяцев

Арт. 1.284
Тёплый контур от: 7 832 451 руб
Площадь:   121 м²
Санузел:   2
Этажей:   1
Спален:   3

Платёж по ипотеке :

от 38 207 руб.

Срок строительства:

от 3-х месяцев

Арт. 1.45
Тёплый контур от: 8 446 564 руб
Площадь:   133 м²
Санузел:   1
Этажей:   1
Спален:   3

Платёж по ипотеке :

от 41 203 руб.

Срок строительства:

от 3-х месяцев

Арт. 1.275
Тёплый контур от: 8 891 120 руб
Площадь:   140 м²
Санузел:   1
Этажей:   1
Спален:   3

Платёж по ипотеке :

от 43 371 руб.

Срок строительства:

от 3-х месяцев

Арт. 1.292
Тёплый контур от: 10 680 615 руб
Площадь:   165 м²
Санузел:   3
Этажей:   1
Спален:   4

Платёж по ипотеке :

от 52 101 руб.

Срок строительства:

от 3-х месяцев

Арт. 1.267
Тёплый контур от: 6 405 114 руб
Площадь:   87 м²
Санузел:   1
Этажей:   1
Спален:   3

Платёж по ипотеке :

от 31 244 руб.

Срок строительства:

от 3-х месяцев

Арт. 2.270
Тёплый контур от: 18 900 000 руб
Площадь:   224 м²
Санузел:   4
Этажей:   2
Спален:   4

Платёж по ипотеке :

от 92 195 руб.

Срок строительства:

от 3-х месяцев

Арт. 2.99
Тёплый контур от: 11 714 355 руб
Площадь:   171 м²
Санузел:   3
Этажей:   2
Спален:   4

Платёж по ипотеке :

от 57 143 руб.

Срок строительства:

от 3-х месяцев

Строительство загородных домов под ключ

Загородное строительство домов под ключ – это комплекс работ по постройке зданий, в котором каждая организация будет предоставлять в данном комплексе свои услуги. Как показывает наша практика – строительство можно начинать в любое время года.

Строительство домов за городом

В сети есть множество проектов домов разных архитектурных стилей: лейнхаусы, таунхаусы, а также поселки эконом классов. Благодаря ним, вы сможете получить представление о том, как будет выглядеть ваш будущий дом за городом. Для реализации строительства дома под ключ вовсе не обязательно строить дом своими руками. Тем более, когда есть проверенные проектировщики в Москве и Подмосковье, которые разработали оптимальные варианты жилья.

Дом за городом под ключ

Наша компания позволяет построить дом в краткие сроки, как и по готовым проектам, так и по индивидуальным планам. В команде лучшие бригады по постройке домов за городом. Они профессионально и оперативно разбираются во всех элементах строительных работ, в то время как клиенту остается просто выбрать готовый проект и наблюдать за увлекательным процессом его реализации.

Загородное строительство дома

Строительство под ключ в Москве позволяет построить жилой дом любого типа, как деревянных, так и газобетонных зданий. Любители загородного дома имеют возможность заказать услугу готового дома с проектированием и возведением. Это позволит построить коттедж за минимальные сроки. Заказывая готовый проект, вы можете быть уверены в том, что ваше жилье прослужит вам долгие сроки.