Яндекс.Метрика
ТОПДОМ

Для добавления проекта в избранное кликните на

Иконка закрытия поиска
Одноэтажный дом 133 м² Арт. 1.251

Строительство по проекту ТОПДОМ под ключ

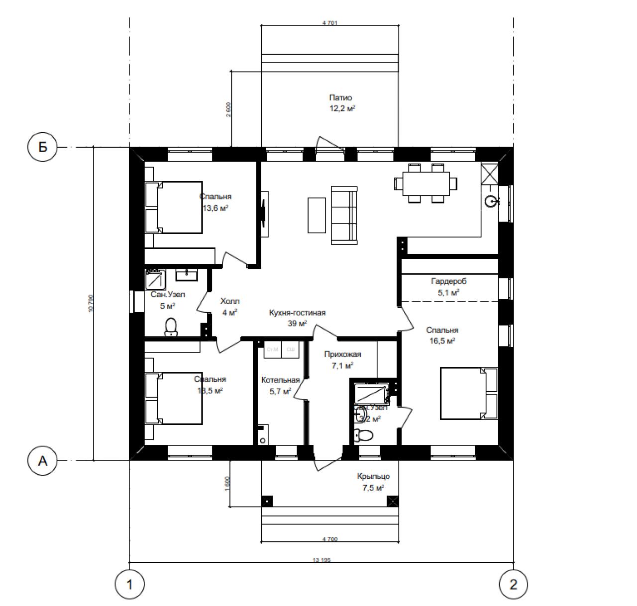
  • Площадь: 133 м²
  • Санузел: 2
  • Этажей: 1
  • Спален: 3
Срок строительства: от 4-х месяцев Платёж по ипотеке : от 41 203 руб.
от 8 446 564 руб.
Стоимость зависит от комплектации
Получить консультацию Не хватает изюминки? Мы можем разработать проект индивидуально

Данный проект является типовым, мы можем сделать разные вариации проектов специально под Ваши пожелания

Планировка
Фото планировки
Фото планировки
Описание

Дизайн этого дома в современном стиле со вторым светом - воплощение элегантности, инноваций и изысканности в архитектуре. Современные формы гармонично сочетаются с функциональностью, создавая уникальные пространства для стильной жизни.

Одной из главных особенностей дома является продуманное использование второго света - окон и остекления - для максимального увеличения естественного освещения комнат. Это создает удивительную атмосферу тепла и света в каждом уголке дома, где освещение и природа находятся в гармонии.

Фасады домов в современном стиле привлекают внимание своей простотой и минимализмом. Чистые линии, прозрачные стеклянные поверхности и современные отделочные материалы создают экстерьер, поражающий своей элегантностью. Величественная форма особняка символизирует сочетание современности и изысканности.

Интерьер особняка продолжает впечатление, создаваемое с первого взгляда. Просторная гостиная, кухня и столовая объединены в единое пространство с помощью современных дизайнерских решений. Высокие потолки создают ощущение открытости, а стильные декоративные элементы придают интерьеру изысканность.

Второй свет, проникающий в дом, создает прекрасный световой эффект и подчеркивает изысканный дизайн интерьера. Спальни, ванные комнаты и кабинеты спроектированы с учетом комфорта и функциональности, отражая современные тенденции в дизайне жилья.

Этот дом со вторым освещением в современном стиле - уникальная возможность стать владельцем пространства, в котором гармонично сочетаются современные технологии и стиль. Выберите этот проект и погрузитесь в атмосферу изысканности и комфорта, создав свой собственный уголок современной элегантности.

Характеристики

Комплектация
Проектирование

Детальный проект по архитектурным решениям и инженерным системам. Спецификации материалов. ТУ на производство работ.

Подготовка к работам

Организация бытовых помещений для строителей, устройство временного щита учета электроэнергии.

Фундамент

Железобетонные буронабивные сваи с анкерным расширением в основании и ростверком.

Ввод инженерных коммуникаций

Заземляющий контур. Ввод водопровода с греющим кабелем. Вывод технической и фекальной канализаций. Кран полива участка.

Каркас дома

Наружные стены дома из керамического блока 2.1 НФ, утепленные каменной ватой на 100 мм. вентиляционный зазор 30 мм. между утеплителем и облицовочной частью дома, снаружи дом отделан облицовочным кирпичом. Облицовка дома и внутренняя стена связываются между собой базальтовой сеткой.

Входная дверь и окна

Утепленная металлическая дверь с терморазрывами по коробке и полотну, с металлическим окрашенным листом снаружи и ламинированной под дерево внутренней панелью МДФ. Оконные блоки из профиля MELKE (Россия) с двухкамерными стеклопакетами 32мм.

Кровля

Штучная цементно-песчаная черепица BRAAS с необходимыми доборными элементами. Подкровельная мембрана «Ютайвек». Отделка карнизов и свесов кровли фиброцементной доской, либо софитами Docke.

Отделка фасада

Облицовка натуральным кирпичом либо штукатуркой.

Предчистовая отделка

Отделка стен гипсовой штукатуркой (машинный способ нанесения). Подоконники и откосы на окнах и дверях. Утепление и стяжка полов.

Лестница

Металлический каркас или железобетонная лестница.

Сантехприборы

Установка и подключение ванн (Россия), умывальников и унитазов Jika (Чехия).

Дымоходы и вентиляция

Двухтрубная система отопления с электрокотлом и обвязкой газового котла. Жидкостные радиаторы. Опрессовка системы перед запуском. Теплые полы по всему первому этажу и санузлах второго этажа.

Водопровод

Разводка металлопластиковых труб по дому. Кран ввода воды, фильтр глубокой очистки, манометр, распределительный коллектор, электробойлер. Подключение всех приборов.

Канализация

Канализационный стояк с ревизией и вентиляционным выходом на кровле. Скрытая разводка ПВХ труб системы канализации по дому.

Электрика

Скрытая разводка электропроводки в стальных трубах. Установка ВРУ, УЗО и автоматов на каждую группу потребителей. Монтаж освещения, выключателей и розеток.

Сопроводительные материалы

Схемы электропроводки, водопровода, системы отопления. Паспорт на все установленные в доме комплектующие. Запасные отделочные материалы.

Гарантийные обязательства

8 лет гарантии на основные строительные конструкции.

Геологические изыскания

Инженерно-геологических изыскания, приемка участка, привязка дома.

Рекомендуемые проекты

Арт. 1.20
Тёплый контур от: 6 384 800 руб
Площадь:   92 м²
Санузел:   1
Этажей:   1
Спален:   3

Платёж по ипотеке :

от 31 145 руб.

Срок строительства:

от 3-х месяцев

Арт. 1.279
Тёплый контур от: 8 891 120 руб
Площадь:   140 м²
Санузел:   2
Этажей:   1
Спален:   4

Платёж по ипотеке :

от 43 371 руб.

Срок строительства:

от 3-х месяцев

Арт. 1.34
Тёплый контур от: 8 510 072 руб
Площадь:   134 м²
Санузел:   2
Этажей:   1
Спален:   2

Платёж по ипотеке :

от 41 513 руб.

Срок строительства:

от 3-х месяцев

Арт. 1.240
Тёплый контур от: 6 811 036 руб
Площадь:   101 м²
Санузел:   1
Этажей:   1
Спален:   3

Платёж по ипотеке :

от 33 225 руб.

Срок строительства:

от 3-х месяцев

Арт. 1.245
Тёплый контур от: 7 822 227 руб
Площадь:   119 м²
Санузел:   2
Этажей:   1
Спален:   3

Платёж по ипотеке :

от 38 157 руб.

Срок строительства:

от 3-х месяцев

Арт. 1.262
Тёплый контур от: 7 822 227 руб
Площадь:   119 м²
Санузел:   1
Этажей:   1
Спален:   3

Платёж по ипотеке :

от 38 157 руб.

Срок строительства:

от 3-х месяцев

Арт. 1.9
Тёплый контур от: 6 184 248 руб
Площадь:   84 м²
Санузел:   1
Этажей:   1
Спален:   3

Платёж по ипотеке :

от 30 167 руб.

Срок строительства:

от 3-х месяцев

Арт. 2.99
Тёплый контур от: 11 714 355 руб
Площадь:   171 м²
Санузел:   3
Этажей:   2
Спален:   4

Платёж по ипотеке :

от 57 143 руб.

Срок строительства:

от 3-х месяцев

Арт. 1.288
Тёплый контур от: 7 756 494 руб
Площадь:   118 м²
Санузел:   2
Этажей:   1
Спален:   3

Платёж по ипотеке :

от 37 837 руб.

Срок строительства:

от 3-х месяцев

Строительство загородных домов под ключ

Загородное строительство домов под ключ – это комплекс работ по постройке зданий, в котором каждая организация будет предоставлять в данном комплексе свои услуги. Как показывает наша практика – строительство можно начинать в любое время года.

Строительство домов за городом

В сети есть множество проектов домов разных архитектурных стилей: лейнхаусы, таунхаусы, а также поселки эконом классов. Благодаря ним, вы сможете получить представление о том, как будет выглядеть ваш будущий дом за городом. Для реализации строительства дома под ключ вовсе не обязательно строить дом своими руками. Тем более, когда есть проверенные проектировщики в Москве и Подмосковье, которые разработали оптимальные варианты жилья.

Дом за городом под ключ

Наша компания позволяет построить дом в краткие сроки, как и по готовым проектам, так и по индивидуальным планам. В команде лучшие бригады по постройке домов за городом. Они профессионально и оперативно разбираются во всех элементах строительных работ, в то время как клиенту остается просто выбрать готовый проект и наблюдать за увлекательным процессом его реализации.

Загородное строительство дома

Строительство под ключ в Москве позволяет построить жилой дом любого типа, как деревянных, так и газобетонных зданий. Любители загородного дома имеют возможность заказать услугу готового дома с проектированием и возведением. Это позволит построить коттедж за минимальные сроки. Заказывая готовый проект, вы можете быть уверены в том, что ваше жилье прослужит вам долгие сроки.