Яндекс.Метрика
ТОПДОМ

Для добавления проекта в избранное кликните на

Иконка закрытия поиска
Двухэтажный дом 156 м² Арт. 2.41

Строительство по проекту ТОПДОМ под ключ

  • Площадь: 156 м²
  • Санузел: 2
  • Этажей: 2
  • Спален: 4
Срок строительства: от 4-х месяцев Платёж по ипотеке : от 53 252 руб.
от 10 916 568 руб.
Стоимость зависит от комплектации
Получить консультацию Не хватает изюминки? Мы можем разработать проект индивидуально

Данный проект является типовым, мы можем сделать разные вариации проектов специально под Ваши пожелания

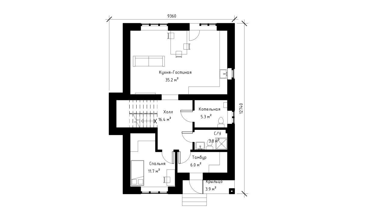
Планировка
Фото планировки
Фото планировки
Фото планировки
Описание

Загородный дом в современном стиле представляет собой идеальное сочетание роскоши и функциональности и предназначен для тех, кто стремится к комфорту и стилю в каждой детали своего дома. Проект является одновременно воплощением современных архитектурных тенденций и уникальным решением для нужд современной семьи.

Экстерьер дома привлекает внимание своей сдержанной элегантностью. Чистые линии, широкие оконные проемы и использование современных отделочных материалов создают современный и стильный облик. Стеклянные элементы на фасаде придают дому открытость, позволяя естественному свету проникать внутрь и создавать уютную атмосферу.

Интерьеры дома выполнены с учетом современных тенденций дизайна и практичности. Просторная гостиная, современная кухня, уютные спальни и стильные ванные комнаты - идеальное сочетание функциональности и красоты. Высокие потолки и использование натуральных материалов придают интерьеру особый шарм.

Но дом - это не только уютное жилое пространство, но и место для отдыха и развлечений. Большой благоустроенный двор, открытая терраса и площадка для барбекю позволят вам наслаждаться природой и общаться на свежем воздухе.

Проекты загородных домов в современном стиле гармонично сочетают в себе природу, современные технологии и стиль. Они созданы для тех, кто хочет получить не просто дом, а уникальное пространство со всем необходимым для качественной и комфортной жизни.

Характеристики

Комплектация
Проектирование

Детальный проект по архитектурным решениям и инженерным системам. Спецификации материалов. ТУ на производство работ.

Подготовка к работам

Организация бытовых помещений для строителей, устройство временного щита учета электроэнергии.

Фундамент

Железобетонные буронабивные сваи с анкерным расширением в основании и ростверком.

Ввод инженерных коммуникаций

Заземляющий контур. Ввод водопровода с греющим кабелем. Вывод технической и фекальной канализаций. Кран полива участка.

Каркас дома

Наружные стены дома из керамического блока 2.1 НФ, утепленные каменной ватой на 100 мм. вентиляционный зазор 30 мм. между утеплителем и облицовочной частью дома, снаружи дом отделан облицовочным кирпичом. Облицовка дома и внутренняя стена связываются между собой базальтовой сеткой.

Входная дверь и окна

Утепленная металлическая дверь с терморазрывами по коробке и полотну, с металлическим окрашенным листом снаружи и ламинированной под дерево внутренней панелью МДФ. Оконные блоки из профиля MELKE (Россия) с двухкамерными стеклопакетами 32мм.

Кровля

Штучная цементно-песчаная черепица BRAAS с необходимыми доборными элементами. Подкровельная мембрана «Ютайвек». Отделка карнизов и свесов кровли фиброцементной доской, либо софитами Docke.

Отделка фасада

Облицовка натуральным кирпичом либо штукатуркой.

Предчистовая отделка

Отделка стен гипсовой штукатуркой (машинный способ нанесения). Подоконники и откосы на окнах и дверях. Утепление и стяжка полов.

Лестница

Металлический каркас или железобетонная лестница.

Сантехприборы

Установка и подключение ванн (Россия), умывальников и унитазов Jika (Чехия).

Дымоходы и вентиляция

Двухтрубная система отопления с электрокотлом и обвязкой газового котла. Жидкостные радиаторы. Опрессовка системы перед запуском. Теплые полы по всему первому этажу и санузлах второго этажа.

Водопровод

Разводка металлопластиковых труб по дому. Кран ввода воды, фильтр глубокой очистки, манометр, распределительный коллектор, электробойлер. Подключение всех приборов.

Канализация

Канализационный стояк с ревизией и вентиляционным выходом на кровле. Скрытая разводка ПВХ труб системы канализации по дому.

Электрика

Скрытая разводка электропроводки в стальных трубах. Установка ВРУ, УЗО и автоматов на каждую группу потребителей. Монтаж освещения, выключателей и розеток.

Сопроводительные материалы

Схемы электропроводки, водопровода, системы отопления. Паспорт на все установленные в доме комплектующие. Запасные отделочные материалы.

Гарантийные обязательства

8 лет гарантии на основные строительные конструкции.

Геологические изыскания

Инженерно-геологических изыскания, приемка участка, привязка дома.

Рекомендуемые проекты

Арт. 1.275
Тёплый контур от: 8 891 120 руб
Площадь:   140 м²
Санузел:   1
Этажей:   1
Спален:   3

Платёж по ипотеке :

от 43 371 руб.

Срок строительства:

от 3-х месяцев

Арт. 1.260
Тёплый контур от: 7 756 494 руб
Площадь:   118 м²
Санузел:   2
Этажей:   1
Спален:   3

Платёж по ипотеке :

от 37 837 руб.

Срок строительства:

от 3-х месяцев

Арт. 1.61
Тёплый контур от: 8 091 375 руб
Площадь:   125 м²
Санузел:   1
Этажей:   1
Спален:   3

Платёж по ипотеке :

от 39 470 руб.

Срок строительства:

от 3-х месяцев

Арт. 2.20
Тёплый контур от: 12 998 772 руб
Площадь:   207 м²
Санузел:   2
Этажей:   2
Спален:   4

Платёж по ипотеке :

от 63 409 руб.

Срок строительства:

от 3-х месяцев

Арт. 2.12
Тёплый контур от: 11 782 860 руб
Площадь:   172 м²
Санузел:   2
Этажей:   2
Спален:   3

Платёж по ипотеке :

от 57 477 руб.

Срок строительства:

от 3-х месяцев

Арт. 2.268
Тёплый контур от: 14 600 100 руб
Площадь:   150 м²
Санузел:   3
Этажей:   2
Спален:   4

Платёж по ипотеке :

от 71 220 руб.

Срок строительства:

от 3-х месяцев

Арт. 1.271
Тёплый контур от: 8 383 056 руб
Площадь:   132 м²
Санузел:   2
Этажей:   1
Спален:   2

Платёж по ипотеке :

от 40 893 руб.

Срок строительства:

от 3-х месяцев

Арт. 2.269
Тёплый контур от: 14 900 016 руб
Площадь:   172 м²
Санузел:   3
Этажей:   2
Спален:   4

Платёж по ипотеке :

от 72 683 руб.

Срок строительства:

от 3-х месяцев

Арт. 1.280
Тёплый контур от: 9 467 472 руб
Площадь:   152 м²
Санузел:   2
Этажей:   1
Спален:   3

Платёж по ипотеке :

от 46 183 руб.

Срок строительства:

от 3-х месяцев

Строительство загородных домов под ключ

Загородное строительство домов под ключ – это комплекс работ по постройке зданий, в котором каждая организация будет предоставлять в данном комплексе свои услуги. Как показывает наша практика – строительство можно начинать в любое время года.

Строительство домов за городом

В сети есть множество проектов домов разных архитектурных стилей: лейнхаусы, таунхаусы, а также поселки эконом классов. Благодаря ним, вы сможете получить представление о том, как будет выглядеть ваш будущий дом за городом. Для реализации строительства дома под ключ вовсе не обязательно строить дом своими руками. Тем более, когда есть проверенные проектировщики в Москве и Подмосковье, которые разработали оптимальные варианты жилья.

Дом за городом под ключ

Наша компания позволяет построить дом в краткие сроки, как и по готовым проектам, так и по индивидуальным планам. В команде лучшие бригады по постройке домов за городом. Они профессионально и оперативно разбираются во всех элементах строительных работ, в то время как клиенту остается просто выбрать готовый проект и наблюдать за увлекательным процессом его реализации.

Загородное строительство дома

Строительство под ключ в Москве позволяет построить жилой дом любого типа, как деревянных, так и газобетонных зданий. Любители загородного дома имеют возможность заказать услугу готового дома с проектированием и возведением. Это позволит построить коттедж за минимальные сроки. Заказывая готовый проект, вы можете быть уверены в том, что ваше жилье прослужит вам долгие сроки.